|
|
|||||||||
|
arquitectura & urbanismo |
arquitectura | térmica | acústica | consultoria | |||||
|
todos os projectos elaborados sob a marca hc-arq são desenvolvidos desde o projecto base até ao projecto de execução e acompanhamento de obra. Só assim se poderá garantir que o projecto elaborado e idealizado foi executado com rigor e perfeição e a qualidade desejada Apresentam-se seguidamente imagens de projectos que se encontram em fase de comercialização (venda) ou possibilidade de aluguer.. |
|||||||||
| para comercialização | |||||||||
|
vendido: |
casa do Casal do Peso Paialvo Tomar |
![]() |
|||||||
|
vendido:
|
casa do Casal Pontão Curvaceiras Tomar |
![]() |
|||||||
|
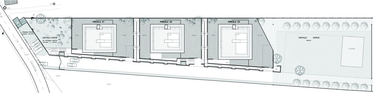
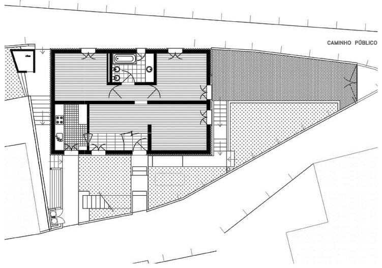
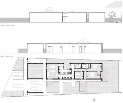
em venda: |
condomínio ccsm Madalena Tomar |
|
|||||||
|
aluguer temporário: |
|||||||||
|
casa mcrs Vila Fonche Arcos de Valdevez apartamentos T2 |
![]() |
||||||||